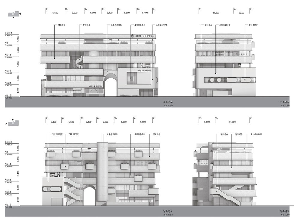
대림2동 공공복합청사 건립사업
Daelim 2-dong Public Complex Center Competition
Seoul, Korea
Design : 2024.02
Architect : Studio Loci Architects
Team : Kim Ganghee, Lee Jaeho
금회 사업대상지는 대림2동으로 저층주거 밀집지역에 위치하며 지난 40년의 시간을 뒤로하고 새로운 변화를 맞이하려 한다. 주민센터는 이전과 다르게 주민자치센터의 기능확대와 더불어 전문적 문화·복지 프로그램이 더해져 복합화된 공간의 성격을 지니며, 그 기능은 점차 확대되는 경향을 보인다. 더욱이 저층주거 밀집지역에 위치한 공공시설은 그 지역의 거점시설로써 다양성을 존중하는 공공의 역할이 더욱 필요해진다. 이번 프로젝트는 주민센터, 어린이집, 자치회관, 지역아동센터로 4가지 기능을 하나의 시설에 통합하는 사업이며, 이에 대한 우리의 대응은 "유연한 공공성"이라는 가치를 지향하는 것에서 시작한다.
1. 公_열어주다. 과밀한 주변과 만나는 건물의 경계를 얼어두어 스며들 수 있는 다양한 틈을 제공한다. 기존에 조성된 풍경에 스며들어 익숙하고 편안한 방식으로 공간을 조성하고, 다양한 이용주체들이 열린 관계를 형성해 갈 수 있길 기대한다.
2. 共_공유하다. 다양한 사람들이 다양한 목적으로 이용할 이 시설에서 파편화된 경험 속에서 유사한 느낌을 공유할 수 있는 공공공간을 제공하고자 한다. 사적공간에서 고려되기 어려운 공공성을 강화하는 방법으로 특색있는 요소를 도입하여 마을 구성원들이 "공동의 기억"을 공유할 수 있도록 계획한다.










